情形环保工程解决计划

BIM应用1:工程选址
Civil3D和Infraworks软件工具的组合,,,,,能够将多类数据导入举行整合剖析,,,,,并快速的建设园地模子、妄想蹊径、整合项目模子于一体,,,,,可团结点云数据,,,,,基于真实场景,,,,,快速完成蹊径工程、园地、雨水/污水排放系统以及园地妄想设计。。。。。。
Plant 3D软件可以再装备模子建设及图纸设计阶段实现正向设计流程,,,,,配合Revit的土建正向设计模子,,,,,抵达多专业整合、碰撞剖析、设计优化等事情,,,,,为设计师提供优异的解决计划。。。。。。


Infraworks可视化场景计划妄想设计
BIM应用2:各专业协同

BIM应用3:使用Plant 3D软件举行流程工厂设计

BIM应用4:事情流及数据交互
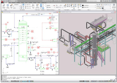
集成的AutoCAD P&ID与Plant 3D情形
? AutoCAD P&ID与Plant 3D可共享一个简单综合的项目,,,,,以此相互举行流通的数据交流。。。。。。
? 配管可校审AutoCAD P&ID数据,,,,,而工艺可校审AutoCAD Plant 3D数据。。。。。。
? 二者共享通用的UI和事情流,,,,,如项目治理器、项目建设与设置以及数据治理器,,,,,从而使用户能够越发轻松地学习和使用。。。。。。
? 借助P&ID数据建设三维管道和装备模子,,,,,并凭证三维模子中的元件验证P&ID数据。。。。。。

BIM应用5:从点云建设模子
可以使用点云数据,,,,,导入到软件中,,,,,从而举行逆向模子的建设,,,,,此一点在较多的改扩建工程中经;;;;;;;嵊没竦。。。。。。提供了原始设计数据的可追溯性、精准性。。。。。。

BIM应用6:协同设计
用户可以参考Navisworks模子
使用已有项目的数据
? PDS, PDMS, 其他名堂
直接使用Revit和Inventor模子
? 通过Navisworks Cache (NWC)
? 当 Revit/Inventor 模子修改时NWC自动更新
? 无需导入/导出操作

BIM应用7:可视化动画展示汇报

来安县第二污水处置惩罚厂
本项目从:预处置惩罚工段、深度处置惩罚工段、生化处置惩罚工段、尾水排放及污泥处置惩罚工段等,,,,,针对污水处置惩罚流程,,,,,接纳3Dmax软件凤凰流体功效,,,,,举行细腻动画的制作。。。。。。







3、运维解决计划一览

好博体育系列产品一览
